︎
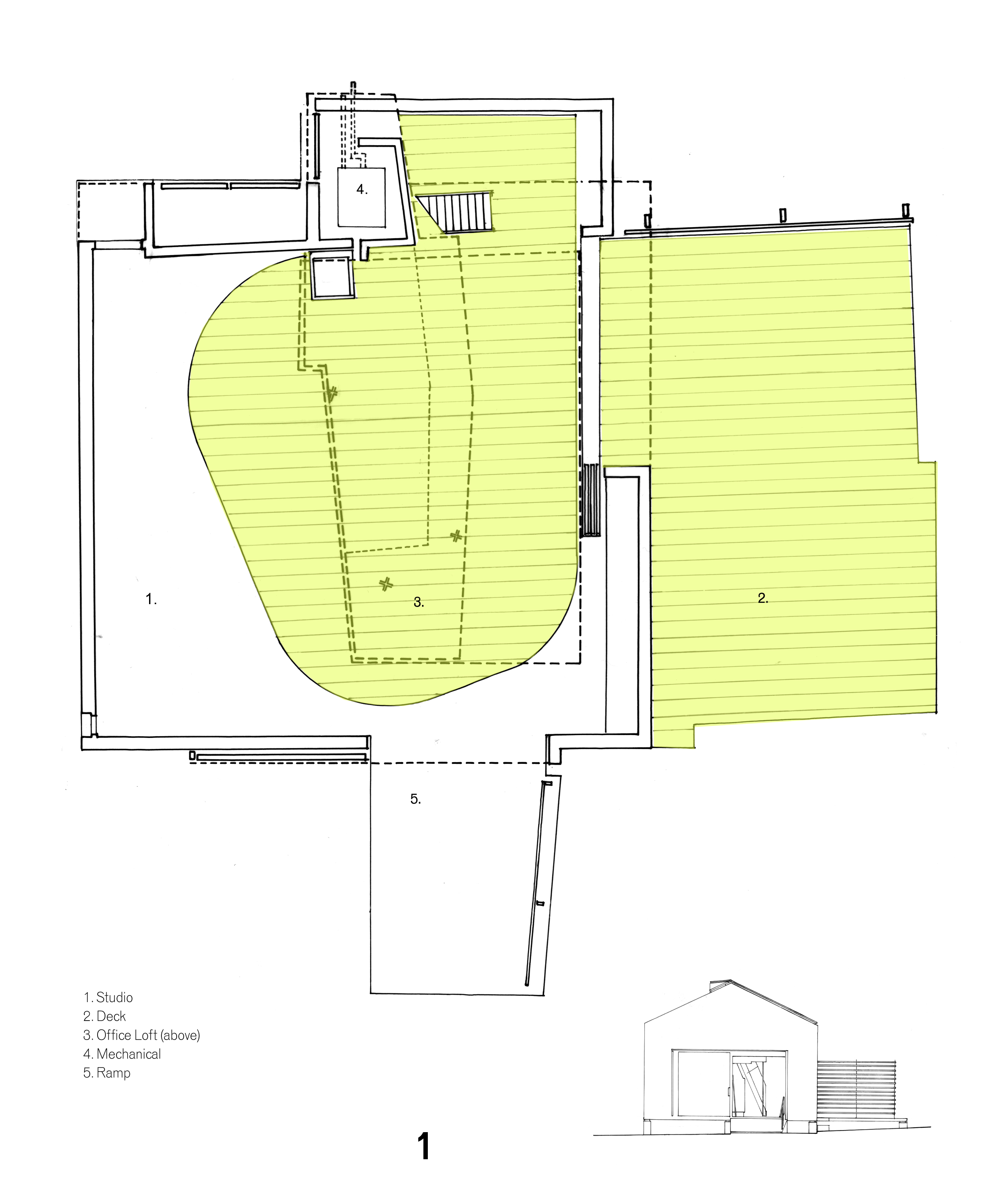
Landscape Painter’s Studio_Syracuse